PDF File Manual Type. In 1946 the Japanese automobile company Honda was created.
Below you can view and download the PDF manual for free.
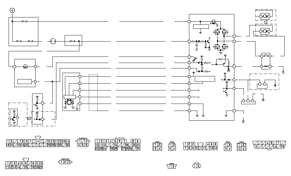
Honda jazz wiring diagram pdf. The PDF allow you to zoom in for to view detailed parts and then print out any pages you need without. The same as used by the car manufacturer to build your car. GETTING GREASE ON ANY PAGES.
SERVICE REPAIR MANUAL. Before you dive in with a multi-meter you will want to obtain a free wiring diagram for your specific model. HONDA JAZZ 2007-2014 MANUAL SERVICE REPAIR.
Due to its dimension and interior space it is sometimes also referred as a mini MPV. Honda Fit Jazz 2003 Service Manual Car Service Manuals. You may need to locate a specific color wire and its exact location.
The car was released in Canada on April 3 2006 and in the US. The Honda Jazz is a subcompact car from Japanese automaker Honda from 2001 to present. This is the Highly Detailed factory service repair manual for the2004 HONDA FIT JAZZ this Service Manual has detailed illustrations as well as step by step instructionsIt is 100 percents complete and intact.
Transmission Service Repair. This is tough to do without a wiring diagram to help guide you through your diagnostic procedure. 100 Complete and 100 Approved.
Many people look for the wiring diagrams and the fuse information within these working manuals too in order to fix electrical problems that may have appeared. Honda Fit Jazz Owner S And Service Manuals Free Pdf. This is a full online version of the Honda Workshop Repair Manual for Honda FitJazz 2002-2005 with images and references used by Honda service stations.
View them online print them or download the original to keep on your computer. Factory workshop manual factory service manual for the 2007 to 2014 model year Honda Jazz also known as the Honda Fit. 1983 2008 2011 2013 2015 2016 2017 and 2018.
Buy and Download Complete repair manual service manual for Honda Jazz Fit. Covers in detail years listed OVER 3000 PAGES. Honda Service Manual Workshop Manual Wiring Diagram HTML PDF EN DVD 314 GB 2021 Size.
Sold over 13 million units until 2009 the Honda Fit is the winner several awards including Japan Car of the. 968 MB File Type. This manual covers all servicing maintenance general repairs advanced repairs rebuild guidelines for engine gearbox suspension axles.
Find Honda FitJazz service manuals in PDF format for the years 2100 through to 1900 for free. Is your product defective and the manual offers no solution. Honda fit honda jazz 12l engine honda fit honda jazz 13l engine honda fit honda jazz 14l engine honda fit honda jazz 15l engine.
Accessory Power Socket. Honda Fit Jazz Service Manual covered. Honda Car EWD s.
Check out other free auto repairing manuals and wiring diagrams. AC Condenser - 3 files 3. Get the same comprehensive level of information that your Honda dealer mechanics and technicians have in a simple PDF format.
Weve checked the years that the manuals cover and we have Honda Jazz repair manuals for the following years. Service Manual Workshop Manual Wiring Diagram Window. These Jazz manuals have been provided by our users so we cant guarantee completeness.
Honda JAZZ 2018 Wiring Diagram Honda ODYSSEY 2015 Wiring Diagram Schematic. The best and the most complete Workshop Manual on eBay from. Its founder Soichiro Honda did not have the necessary engineering education but he compensated for all the gaps with risk and accurate.
Anti-lock Brake System ABS. Honda Jazz Honda Fit GE8 2009 onwards Online Repair Manual Pick a title on the left. However I did some tests today with.
It is known as Honda Fit in Japan China and the Americas. This is the original OEM workshop service and auto repair manual for the 2007-2014 Honda Fit Jazz second generation with the wiring diagrams in a simple PDF file format. Therefore you are always well prepared before you even go outside and into your garage to carry out that repair for free.
All models and all engines are included. Find the free Honda wiring diagram you need and get started repairing. Honda jazz wiring diagrams diagram 1 pdf txt car manual fault codes dtc work fit 2002 service manuals 2009 auto repair software epc cars full package and lsolutions 2005 by jacky dean issuu motorcycles 58 Сar crf 450 r 2018 cbr1000rr left hand control cx 500 forum civic electrical b operating manualzz 2007 thru haynes editors of quarto at a.
Check out other free auto repairing manuals and wiring diagrams. Wiring Diagram for Jazz. Honda Jazz Mk1 2002-2008 Wiring Diagram for Jazz.
Need a manual for your Honda Jazz 2010. 2001 2008 honda jazz 2001 honda jazz 2002 honda jazz 2003 honda jazz 2004 honda jazz 2005 honda jazz 2006 honda jazz 2007 honda jazz 2008. Honda Jazz Fit Work Manual 2007 2014 Free Factory Service.
Wiring diagram section General Information Section Engine Section Engine Section Transmission Chassis Body Wiring System General Description. Exactly the same as used by Official and Authorised Car manufacturers Services to fix your car. Some HONDA Car Manuals PDF.
HONDA JAZZ manual service manual maintenance car repair manual workshop manual diagram owners manual user manuals pdf download free source of service information technical specifications and wiring schematics for the HONDA JAZZ. AC Compressor - 6 files 2. Honda Jazz Owner S Manual Pdf Manualslib.
It covers every single detail on your car. Download honda jazz repair manual in a simple PDF file format. Go through the 13 different PDFs that are displayed below for example this one.
They are specifically written for the do-it-yourself-er as well as the experienced mechanic2004 HONDA FIT JAZZ Service Repair Workshop Manual provides step. The Honda Fit Jazz service manual will show you which tools and size to use. There are also frequently asked questions a product rating and feedback from users to enable you to optimally use your product.
Honda Type of document. If this is not the manual you want please contact us. It will be the best decision you ever make.
All Window 32 and 64 Bit. On April 20 2006 as a 2007 model year car. Wiring Diagram - 2 files.
Got a problem with ABS system in service they told me I need a new Pump based on the fault code displayed. March 07 2017 095716 PM Im looking to get a wiring diagram for my Jazz specially for the ABS System. Honda Car Radio Stereo Audio Wiring Diagram Autoradio Connector Wire Installation Schematic Schema Esquema De Conexiones Stecker Konr Connecteur Cable Shema.

0 komentar